ABOUT
PROJECTS
CONTACT
ABOUT
PROJECTS
CONTACT

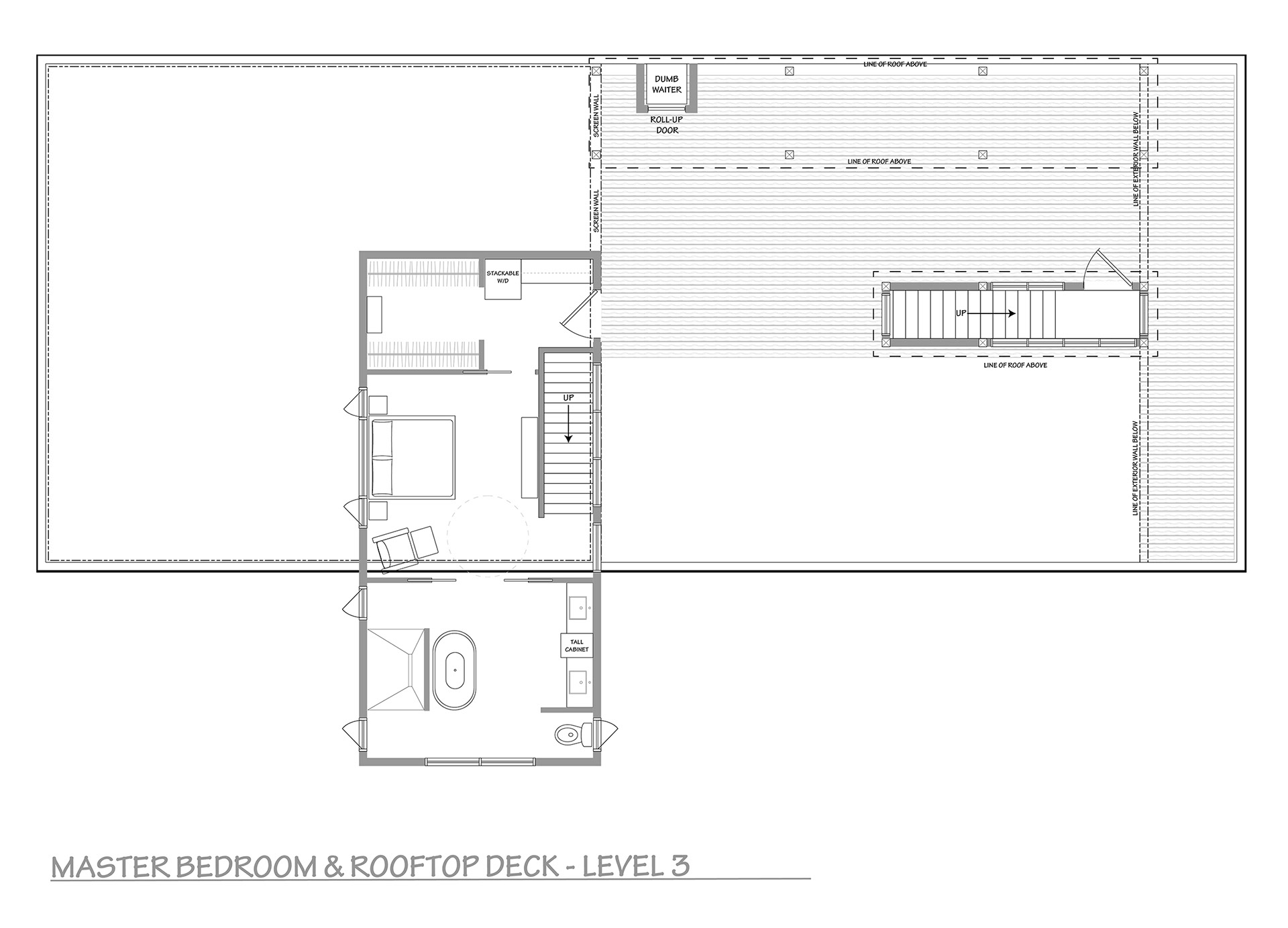
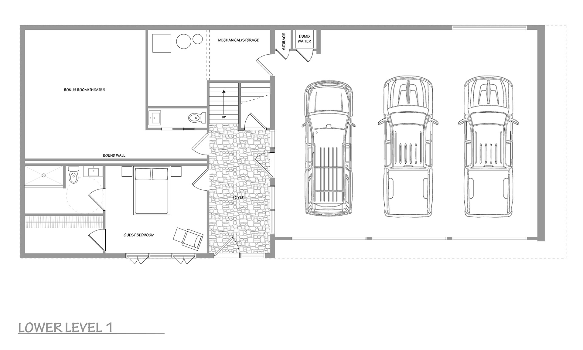
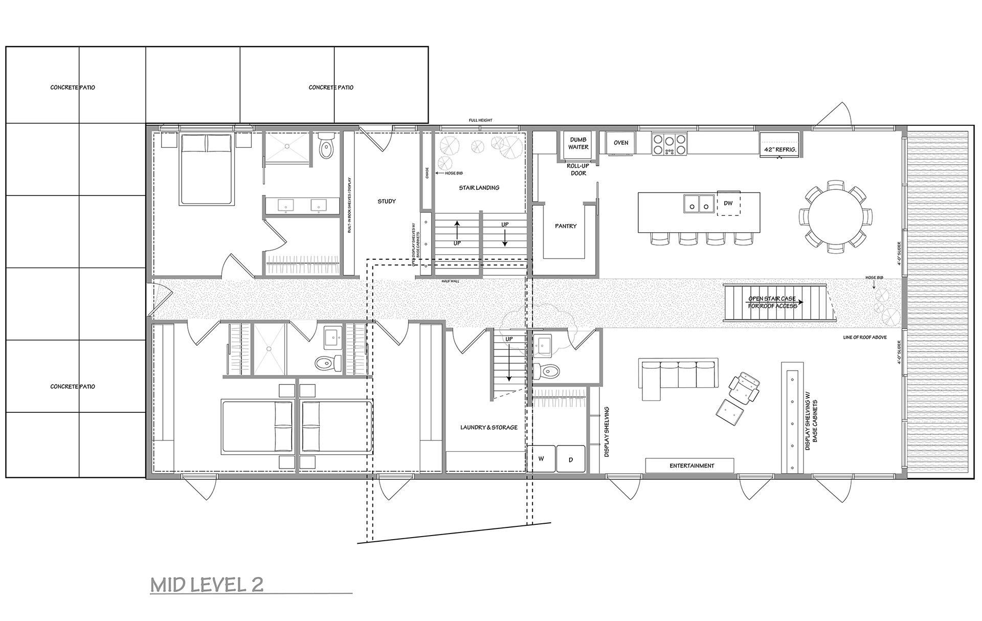
DITLEV HOUSE

YOU MAY ALSO LIKE

CINCINNATI REDS BAS-RELIEF
FOREST HOUSE RENOVATION
PARAMOUNT PLAZA
STEWMAC
AULICK HOUSE
CITY OF ATHENS PARKING
CINCINNATI REDS SCOUTS ALLEY
POST 22 BASEBALL
CINCINNATI REDS WAYFINDING
LEGACY HOUSE
↑Back to Top
© BERBERICH DESIGN 2024